Thiết kế nhà ống 2 tầng tại Phan Thiết: Việc lựa chọn thiết kế nhà ống 2 tầng trở nên phổ biến. Đây không chỉ là giải pháp tối ưu hóa diện tích ở mức độ tối đa mà còn mang lại sự hiện đại và tiện nghi cho không gian sống. Chúng ta sẽ khám phá những đặc điểm và ưu điểm của thiết kế nhà ống 2 tầng cùng những mẫu thiết kế đẹp và hiện đại nhất.

Tiêu chuẩn Thiết kế Nhà ống 2 tầng
Đặc Trưng Chung
Mảnh Đất Hình Chữ Nhật:
-
- Ưu điểm: Việc chọn mảnh đất hình chữ nhật với chiều rộng là mặt tiền và chiều dài là chiều sâu giúp tận dụng hiệu quả diện tích đất hạn chế.
- Tối ưu Hóa Diện Tích: Áp dụng khối hình chữ nhật cao làm cho không gian trở nên tối ưu hóa, đồng thời giúp thiết kế nhà ống 2 tầng trở nên đặc trưng và dễ nhận diện.
Tối Giản và Sáng Tạo
Giếng Trời và Cửa Nhôm Kính:
-
- Tối Giản: Tích hợp giếng trời và cửa nhôm kính là giải pháp tối giản hóa không gian và tạo ra cảm giác thoải mái.
- Sáng Tạo: Sử dụng ánh sáng tự nhiên không chỉ tạo không gian sáng sủa mà còn giúp giảm chi phí năng lượng.
Bố Trí Phòng Hợp Lý
Sự Quan Trọng Của Bố Trí Phòng:
-
- Tiện Nghi và Thuận Tiện: Việc xem xét kỹ lưỡng về vị trí của từng phòng giúp đảm bảo rằng mọi không gian được sử dụng một cách hợp lý và thuận tiện.
- Nhu Cầu Sinh Hoạt và Di Chuyển: Bố trí phòng phải phản ánh nhu cầu sinh hoạt cũng như tiện lợi trong di chuyển trong ngôi nhà, tăng cường tính thực tế và sử dụng hiệu quả diện tích.
Có thể thấy sự tích hợp của các yếu tố tối giản, sáng tạo, và bố trí phòng hợp lý trong thiết kế nhà ống 2 tầng. Từ việc tận dụng diện tích đất một cách hiệu quả đến việc sáng tạo trong việc sử dụng ánh sáng tự nhiên và quan trọng nhất là bố trí phòng hợp lý, mọi yếu tố này cộng lại tạo nên không gian sống đẹp và hiện đại cho gia đình.
Xem thêm: Dịch vụ xây nhà trọn gói tại Phan Thiết
Ưu Điểm của Nhà Ống 2 Tầng
Đa Dạng Phong Cách thiết kế nhà ống 2 tầng
Sự Đa Dạng phong cách Hiện Đại đến Cổ Điển: Thiết kế nhà ống 2 tầng rất đa dạng từ phong cách hiện đại đến cổ điển theo nhu cầu và phong cách thẩm mỹ của gia chủ. Có khả năng linh hoạt, phù hợp với sở thích và phong cách sống đa dạng của từng gia đình.
Phù Hợp với Sở Thích và Phong Cách Sống:
-
- Cá Nhân Hóa: Nhiều sự lựa chọn giữa nhiều phong cách thiết kế giúp gia chủ có thể cá nhân hóa không gian sống theo sở thích và yêu cầu cụ thể của họ.
- Phản Ánh Đời Sống Gia Đình: Việc có sự đa dạng này giúp ngôi nhà trở nên đặc sắc và phản ánh đúng chất sống của gia đình.
Tiết Kiệm Thời Gian và Chi Phí
Tiết Kiệm Thời Gian Trong Thiết Kế: Thiết kế nhà ống 2 tầng không mất quá nhiều thời gian và công sức. Bạn có thể sử dụng các mô hình thiết kế chuẩn để giảm bớt thời gian và mang đến nhiều sự lựa chọn trực quan cho gia chủ.
Diện Tích Sử Dụng Hiệu Quả
Thiết Kế Thông Minh: Thiết kế nhà ống 2 tầng đảm bảo tận dụng mọi diện tích có thể. Điều này thường liên quan đến việc sử dụng các giải pháp như bố trí phòng và nội thất đơn giản, khoa học.
Khoảng Không Gian Thoải Mái và Linh Hoạt: Sự đơn giản trong bố trí nội thất và không gian giúp tạo ra một môi trường sống thoải mái và linh hoạt, đồng thời giữ cho không gian trở nên sáng tạo.
Đa dạng phong cách cho đến tiết kiệm thời gian và chi phí, cùng với việc sử dụng diện tích một cách thông minh, những yếu tố này đồng hợp tác để tạo ra một ngôi nhà không chỉ đẹp mắt mà còn hiệu quả và phù hợp với nhu cầu của đại đa số gia đình Việt.
Mẫu Nhà Ống 2 Tầng Đẹp 2023
Nhà Ống 2 Tầng Ở Nông Thôn
Những mẫu nhà ống 2 tầng ở nông thôn thường mang đặc điểm của sự đơn giản và khả năng sử dụng hiệu quả không gian. Phòng chức năng được bố trí một cách hợp lý để phát huy tối đa công năng sử dụng.

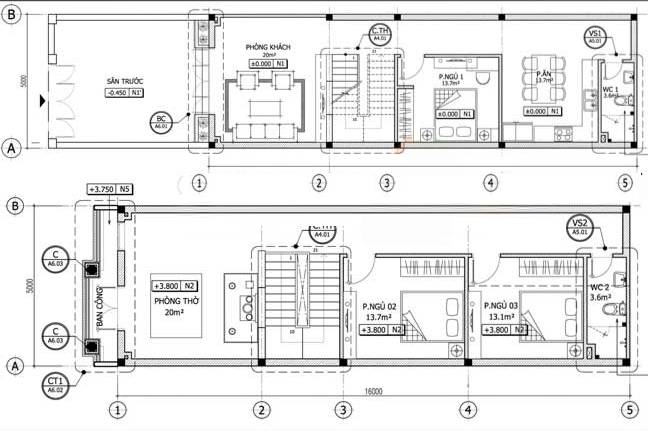
Nhà Ống 2 Tầng 3 Phòng Ngủ 5x16m
Với diện tích thi công hạn chế, mẫu nhà ống 2 tầng 3 phòng ngủ 5x16m tận dụng mỗi mét vuông một cách linh hoạt. Sự sáng tạo trong bố trí giúp tối ưu hóa không gian sống.


Nhà Ống 2 Tầng 5x20m
Với diện tích 5x20m, mẫu nhà ống 2 tầng này là lựa chọn phù hợp nhất. Thiết kế linh hoạt với tầng tum hoặc sân thượng, đồng thời tận dụng không gian phía trước làm chỗ đậu xe.

Nhà Ống 2 Tầng Mái Thái 5x20m
Mẫu nhà ống 2 tầng mái Thái 5x20m không chỉ đẹp mắt mà còn chống nóng hiệu quả. Phần mái Thái được thiết kế với độ dốc phù hợp, giúp hạn chế nước ngưng đọng và tạo nên không gian thoải mái.

Nhà Ống 2 Tầng Mái Bằng
Nhà ống 2 tầng mái bằng thường áp dụng cho mặt phố, với phần mái là bê tông cốt thép. Thiết kế đơn giản, hiện đại và tận dụng không gian mái cho nhiều mục đích sử dụng.

Thiết kế, thi công nhà ống 2 tầng tại Phan Thiết
Với những ưu điểm về diện tích, chi phí, và sự hiện đại, thiết kế nhà ống 2 tầng đang là sự lựa chọn thông minh cho nhiều gia đình tại Phan Thiết. Qua những mẫu thiết kế đẹp và hiện đại, hy vọng rằng bài viết này đã giúp bạn có cái nhìn tổng quan về xu hướng này và có thêm sự lựa chọn đúng đắn cho ngôi nhà của mình.
Công ty TNHH Tư vấn Xây dựng Huy Gia (HuyGiaCons)
- Địa chỉ: Số 24, đường Nguyễn Bỉnh Khiêm, phường Phú Thủy, Phan Thiết, Bình Thuận
- Hotline: 0868222272 | 0938059652
- Email: ctyhuygia@gmail.com
- MST: 3401184222
- Facebook: Xây Dựng Huy Gia


Có thể bạn quan tâm:
Công trình nhà ở gia đình chị Kiều – Biểu trưng cho không gian sống tiện nghi và văn minh
Công trình nhà ở gia đình chị Kiều là dự án [...]
Công trình Hùng Vương – Dấu ấn hiện đại giữa lòng Phú Thủy
Công trình nhà phố Hùng Vương, tọa lạc tại F19 đường [...]
Lưu ý khi thiết kế giếng trời cho công trình của bạn
Lưu ý khi thiết kế giếng trời: Giếng trời là một giải [...]
Cải tạo nâng tầng nhà cần chú ý những gì?
Cải tạo nâng tầng nhà cần chú ý những gì?. Cải [...]
Vị trí nào nên xây tường 10, tường 20
Vị trí nào nên xây tường 10, tường 20: Khi xây dựng [...]
Cách giám sát đổ bê tông sàn nhà ở
Cách giám sát đổ bê tông sàn nhà ở: Việc giám [...]